Kod
1010481
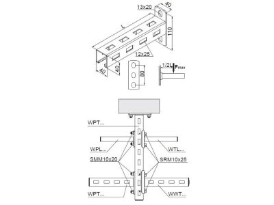
Wysięgnik WPT600 | 710960 Baks
Informacja o Produkcie
Opakowanie zbiorcze zawiera 20 szt.Alternatywny kod produktu: WPT600Podwieszanie tras kablowych, oraz mocowanie koryt, drabin kablowych,rur i innych elementów, szczególnie tam gdzie jest mało miejsca na trasy kablowe (np. nad sufitami podwieszanymi). Możliwość zastosowania jako wspornika sufitowego.
- Producent Baks
- Wymiary 0.043m x 0.112m x 0.618m
- Seria producenta WPT
Wysięgnik do kablowego systemu nośnego
- Długość 615 mm
- Szerokość 40 mm
- Wysokość 110 mm
- Model Wysięgnik ścienny
- Obciążenie dopuszczalne 1.3 kN
- System utrzymania sprawności działania E30 Nie
- Materiał Stal
- Stal nierdzewna Nie
- Gatunek materiału Inne
- Zabezpieczenie powierzchni Ocynk ogniowy zanurzeniowy
Do pobrania
Wszystkie obrazy








































