Kod
                                    1010484                                
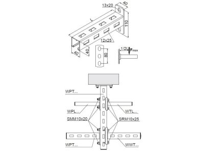
                                            Wysięgnik WPT150 (STD) | 710915 Baks
Informacja o Produkcie
Opakowanie zbiorcze zawiera 30 szt.Alternatywny kod produktu: WPT150Podwieszanie tras kablowych, oraz mocowanie koryt, drabin kablowych,rur i innych elementów, szczególnie tam gdzie jest mało miejsca na trasy kablowe (np. nad sufitami podwieszanymi). Możliwość zastosowania jako wspornika sufitowego.
- Producent Baks
- Wymiary 0.11m x 0.045m x 0.173m
- Seria producenta WPT
                    Wysięgnik do kablowego systemu nośnego                
                - Długość 165 mm
- Szerokość 40 mm
- Wysokość 110 mm
- Model Wysięgnik ścienny
- Obciążenie dopuszczalne 2.5 kN
- System utrzymania sprawności działania E30 Nie
- Materiał Stal
- Stal nierdzewna Nie
- Gatunek materiału Inne
- Zabezpieczenie powierzchni Ocynk ogniowy zanurzeniowy
Do pobrania
Wszystkie obrazy
 
                 
                 
    






 
                
                                






































