Korytko kablowe MKSMU 60x150, St, FS MKSMU 615 FS (3m) | 6059232 Obo Bettermann
Korytko kablowe MKSMU 60x150, St, FS MKSMU 615 FS (3m)
Informacja o Produkcie
Długość 3 m.Alternatywny kod produktu: MKSMU 615 FS
- Producent Obo Bettermann
- Seria producenta MKSMU-Serie
Korytko kablowe
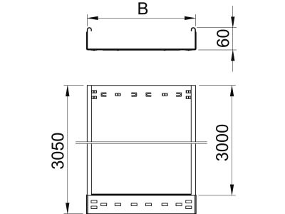
- Wysokość 60 mm
- Szerokość 150 mm
- Grubość materiału 1 mm
- Długość 3050 mm
- Przekrój użyteczny 8800 mm²
- Perforacja boczna Nie
- Perforacja montażowa w części dolnej Nie
- Układ otworów montażowych NATO Nie
- Model Zintegrowany łącznik
- Model szerokorozpiętościowy Nie
- System utrzymania sprawności działania E30 Nie
- Materiał Stal
- Stal nierdzewna Nie
- Gatunek materiału Inne
- Zabezpieczenie powierzchni Ocynk galwaniczny
- Kolor Brak
- Z pokrywą Nie
Do pobrania
Wszystkie obrazy

